金奖作品荐读 | 循环吧!藻基鱼塘【中国矿业大学建筑与设计学院】第九届紫金奖建筑赛
| 发布:2023-04-09 |
3496



引言 FOREWORD
第九届“紫金奖•建筑及环境设计大赛”立足设计服务现实改善、设计创造文化价值,聚焦大运河文化保护传承与创新,聚焦文化活力空间的当代塑造,以“千年运河 活力家园”为主题,共征集到1451项作品(学生组1038项、职业组413项),425家机构(院校)、6353人次参与赛事。首次参赛单位121家,其中,46.28%是省外机构(院校)。
参赛作品聚焦具有真实的历史记忆和历史文化的场地,创作了一批题材多元、亮点纷呈、富有创意的设计方案。近期微信公众号将逐步推出第九届紫金奖建筑赛获奖作品解读,期待能为大运河文化保护传承与创新,大运河活力空间的当代塑造提供思考启迪。

第九届“紫金奖·建筑及环境设计大赛”
【职业组】
金奖作品


◎ 获奖人员

△ 获奖人员(从左至右):张彦泽 姚刚 周泽嘉 王杙菓
创作回顾
Review of Creations


△ 古镇区位示意图


△ 基地现状风貌要素

△ 古镇沿线水域空间生物多样性现状梳理
我们以古镇沿线大运河水域为设计对象,尝试引入“运河生态圈”的概念来推动运河生态环境改善,构建人与自然和谐共生的运河家园。

△ 设计逻辑生成

△ 设计概念思考


△ 设计总平面图

△ 传统鱼塘与藻基鱼塘模式对比示意图

△ 传统风貌建筑形式转译

△ 藻基鱼塘单体分解轴测图


△ 空间功能生成过程示意

△藻基鱼塘与周边空间关系示意图
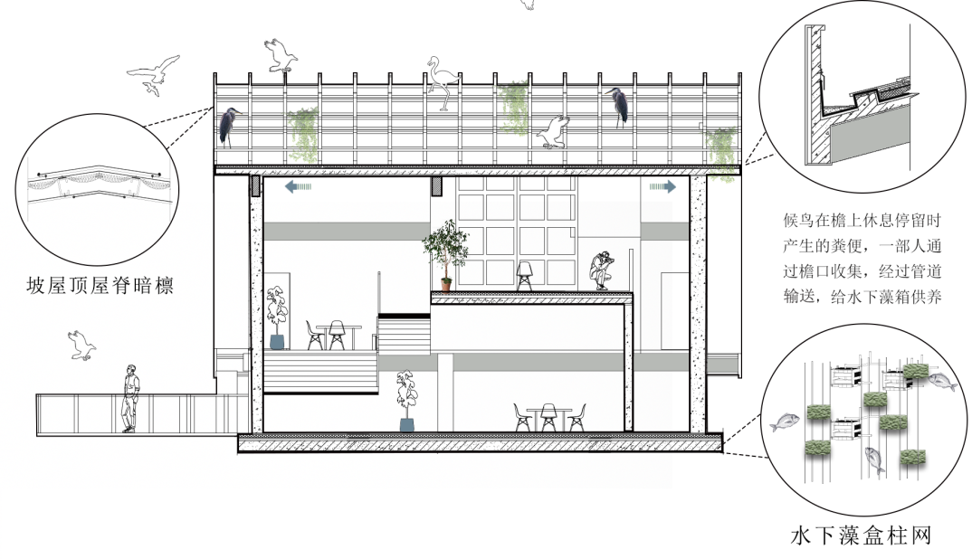
藻基鱼塘单体由栖息鸟架、餐厅商业空间以及水下藻箱柱网组成。鱼塘单体以竖向流线为设计方式,打造形成可灵活组合的小型生态循环系统。

△ 剖面设计示意图

△ 藻基鱼塘功能空间和场景设计效果图

△ 单体功能组成示意图
藻基鱼塘生态循环理念设想:
阳光为藻类提供能量,粪便作为藻类肥料,藻类成为鱼的食物,鱼类成为候鸟的食物。在藻基鱼塘里,人、鸟、鱼、藻形成了自给自足的生态循环。

△ 循环过程

△ 檐下空间
设计方案中“河中游船、屋顶候鸟栖息、河岸钓鱼、水上餐饮、水下观鱼”等场景,可为本地渔民提供游船工作员、候鸟保育员、渔具租赁工作员、餐厅服务员、水下引导员等新的就业机会。

△ 不同场景渔民就业空间设想
设计解读
Design Ideas

“藻基鱼塘”的设计是否充分考虑到鱼塘藻类养殖系统科技手段的运用,特别是预防水污染、病虫害等潜在风险?
周泽嘉
设计方案采用智能水产养殖系统,通过物联网智能处理及控制技术,构建集水质监测、能耗获取等功能于一体的水产养殖管理系统,以达到检测水质、节能增产的目标。
此外,还可以综合运用多品种搭配混养、放养螺蛳、添加有益菌等生物调控水质措施,如可定期在水体中加入化能异养细菌、光合细菌等,通过有益菌的繁殖生长形成新的优势菌群,能够在一定程度上直接或间接抑制有害菌群的繁殖生长、减轻有机污染物的污染,为鱼类生存提供一个良好的水环境。


△ 检测系统
△ 信息预警系统

“藻基鱼塘”除了鸟粪之外,有没有一并考虑人的活动(厨房、卫生间、卧室等)所产生的生活污水?
张彦泽
我们认为,可将周边生活污水集中进行收集,采用生物滤池技术进行预处理,再接入市政污水处理设施统一处理。在我们的设想中,当生活污水进入生物滤池后,滤池中的微生物将污水中的有机物进行分解。微生物吸收有机污染物后,一部分转化为自身能量,一部分分解成沼气,可为当地提供部分可再生能源。

△ 藻箱位置

△营养输送

△ 藻箱内部

△ 肥料处理
选手风采
Moments of Contestants



△ 现场花絮
评委点评
Opinions of the Jury

梅耀林
江苏省设计大师
江苏省规划设计集团总经理
作品立足渔民退捕转产这一背景,提出“运河生态圈”的设计理念,将河上渔屋、藻基鱼塘等富有创意的设计元素融入方案,形成生产生活生态三者的“循环”关系,为当地水域生态环境改善、渔业资源保护、渔民生产生活条件改善和文旅业态发展提供了可借鉴的实施路径。




— END —
审 核 | 何伶俊
编 辑 | 何培根 姚梓阳 庞慧冉
发 布 | 邱 蕾





