第十届银奖作品荐读 | 豆香弥漫——平江九巷历史街区改造【苏州大学】
| 发布:2024-11-21 |
1317


引言 FOREWORD
第十届“紫金奖•建筑及环境设计大赛”聚焦城乡建设模式发展转型,聚焦城乡空间品质和活力提升,以“更新的家园 更美的生活”为主题,共征集到2402项作品(学生组1881项、职业组521项),共有306所院校、271家设计机构的选手参赛、9477人次参与赛事。
参赛作品紧扣“更新”主题,创作了一批题材广泛、类型多元、亮点纷呈、富有创意的设计方案。近期微信公众号将逐步推出第十届紫金奖建筑赛获奖作品解读,期待能为城乡建设高质量发展和美丽宜居城市建设提供思考启迪。

第十届“紫金奖·建筑及环境设计大赛”
【学生组】
银奖作品


◎ 获奖人员

创作回顾
Review of Creations


一代人心中的回忆

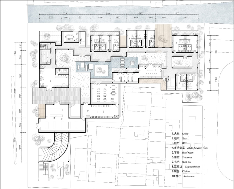
场地位于苏州市姑苏区悬桥巷与临顿路交界处,1960年代曾为平江食品厂,该厂的特色产品——苏式豆腐,广受当地居民欢迎,成为了当地颇具情感记忆的豆腐文化。
在一次实地调研过程中,我们试图将豆腐坊作为特色元素,以延续场所记忆的设计,让豆腐坊再次以新的方式融入古城现代生活。
△ 设计基地区位图和现状实景(左右滑动查看更多)


日常的市井烟火气息
与古城园林意境的交融

设计提炼转译原有豆腐坊生产工艺流程和豆腐文化元素,通过古典园林回游路径的方式组织内院空间,形成颇具趣味的游园路径,营造出具有姑苏传统建筑文化意蕴、水巷肌理的诗意空间,改造成为“豆香弥漫”的园林式精品酒店。

△ 设计鸟瞰效果图

△ 设计总平面图


留住“豆香氤氲”的记忆
豆坊氤氲香气可以说是“豆腐坊”乡愁延续和传承的一个集体在地记忆,设计方案将场地西侧沿街的区域设置为对社会大众开放的功能组团,分别为豆腐坊、厨房、餐厅和酒店大堂,打造形成豆腐文化体验的综合性入口空间。

△ 场地西侧沿街的豆腐文化体验综合性空间示意图

△ 木构建筑屋顶设计示意

△ 建筑屋顶细部设计示意
延续“江南园林”的意境
设计结合江南园林艺术,汲取留园、艺圃等传统园林空间趣味,提炼曲廊、建筑、园景等空间原型,转译形成“庭、水、廊、树”核心设计要素。


△ 园林转译设计示意


△ 建筑院落效果图
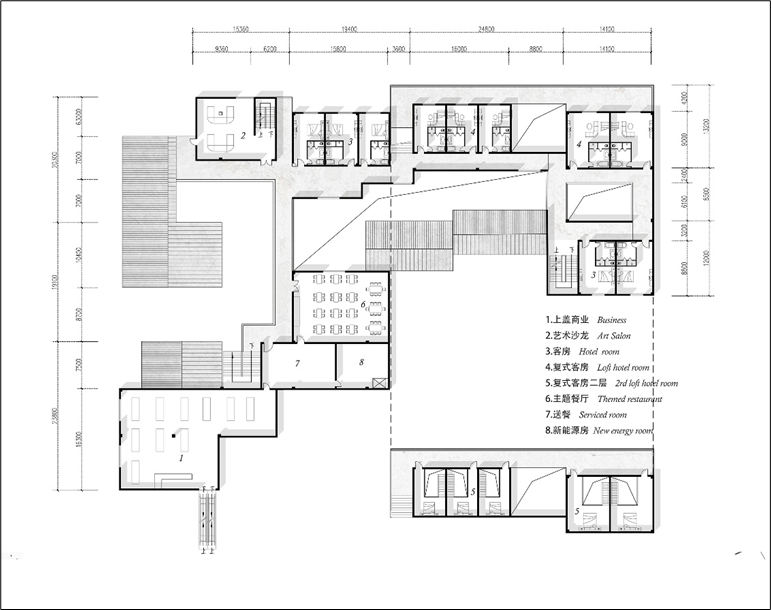
临河处设置酒店客房组团,屋面采用木结构,以仿古瓦片覆盖。建筑一层围绕内院设计游览曲廊,二层设计空中回廊串联酒店客房组团和其他功能组团,长廊内部压低视线展示观景长画卷。

△ 建筑一层设计平面图

△ 建筑二层设计平面图

△ 建筑爆炸图
设计解读
Design Ideas

设计如何分析和体现苏州民居构成的原型范式和特点?
陆茗
建筑设计提炼传统民居建筑元素,以几何化的手法,转译为现代建筑语言。
豆腐坊中间为庭院,后部主体建筑采用歇山顶形式,其他部分用两坡顶形式;歇山顶檐口比两坡顶檐口略高,以形成较为丰富的建筑造型层次。
庭园景观借鉴古典园林“移步换景”“景至视线所及”的模式,与古典园林特色一脉相承。

△ 建筑立面图

△ 设计剖视图

△ 木构建筑室内屋顶设计示意

设计如何融合豆腐文化与民居生活,一层豆腐坊如何解决环保问题?

刘福琳
苏州的园林和古城一直是当地老百姓生活的场所,我们希望延续此地的建筑属性及平江食品厂的历史,将苏式豆腐文化融入当代生活。因此,我们将酒店豆腐坊功能组团临街布置,以便更好地展示和推广。
制作豆腐包含煮豆、磨浆、打泡、煮浆、点卤、压制成型等步骤,制作过程中产生的豆渣和浆水可能对环境造成一定影响。设计将豆渣和浆水设置在地下室中,经好氧生物与厌氧物质分解,形成有机物与无害物质,避免破坏环境。
选手风采
Moments of Contestants




评委点评
Opinions of the Jury

冯正功
全国工程勘察设计大师
中衡设计集团股份有限公司董事长首席总建筑师
作品以“豆香弥漫”为设计切题点,抽取了平江九巷“豆腐坊”“豆腐文化”“水巷肌理”等城市记忆与文化要素,通过对以上文化要素及苏州建筑、园林、场景的诗意进行分析建构,结合现代场所精神,在交通组织及流线设计上实现了对传统游园路径的现代转译,并将传统工坊场所与现代酒店功能充分结合,营造出具有自身特色的空间氛围,彰显了自身特有的情感记忆。设计采用了交叉共享的公共空间理念和低碳环保的建造方式,展示了具有当代烟火气的“豆香弥漫”空间。


— END —
审 核 | 何培根
编 审 | 樊思嘉 庞慧冉 濮蓉
供 稿 | 陆茗 刘福琳
排 版 | 薄皓文
延伸阅读
01
时光储蓄池——基于养老新模式的常州清潭污水厂更新改造计划【东南大学】第十届紫金奖建筑赛
02
邻里·林里 ——无锡园博园S6农贸市场改造更新【南京长江都市建筑设计股份有限公司】
03
树“间”接送——以老旧校园接送空间更新与拓展为主导的城市驿站【苏州科技大学】
04
和谐·共生—武夷山国家公园1号风景道月亮湾观景台及驿站更新【苏州零点营造设计有限公司、新大阪外国语学院】






